Проект трехэтажного отеля «Contrasty Canvas Hotel» разработан для его гостей и сотрудников. На первом этаже расположены входная зона, лобби, ресторан и служебные помещения. Второй и третий этажи занимают номера: стандартные, семейные, полулюксы и люксы. Тематика отеля — соединение противоположностей в дизайне фасадов и интерьеров. Отличительной чертой является разнообразный дизайн номеров. Например, черно-белый и яркий, сумерки и рассвет, война и мир, белый и черный. Расположение отеля также соответствует его тематике — отель находится в г. Стамбул на набережной пролива Босфор, который соединяет Европу и Азию, запад и восток. Концепция проекта освещения основана на создании функционального, атмосферного, акцентного и навигационного света, а также подборке осветительных приборов, которые будут подчеркивать тематику отеля.
Цели: — создание функционального, атмосферного, акцентного и навигационного света — подборка осветительных приборов, которые будут подчеркивать тематику отеля — расчет освещенности помещений — соблюдение норм освещения

местоположение

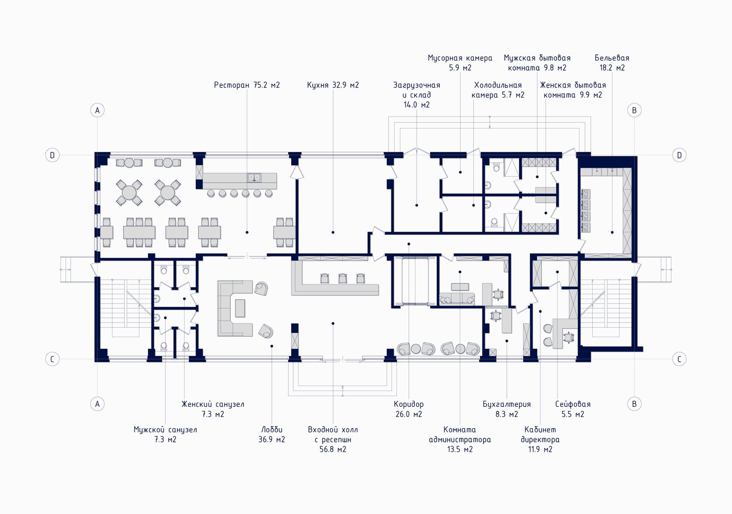
планировочное решение 1 этажа
планировочное решение типового этажа
слева — входная зона и лобби; посередине — стандартный номер (белый/черный); справа — полулюкс (война/мир)
сверху — люкс (сумерки/рассвет); снизу — семейный номер (черно-белый/яркий)
moodboard
слои освещения. лобби; желтый — функциональный свет, голубой — атмосферный свет, красный — акцентный свет, розовый — навигационный свет
нормы освещения. лобби
подбор светильников. лобби
слои освещения. стандартный номер; желтый — функциональный свет, голубой — атмосферный свет, красный — акцентный свет, розовый — навигационный свет
нормы освещения. стандартный номер
подбор светильников. стандартный номер
слои освещения. полулюкс; желтый — функциональный свет, голубой — атмосферный свет, красный — акцентный свет, розовый — навигационный свет
нормы освещения. полулюкс
подбор светильников. полулюкс
слои освещения. люкс; желтый — функциональный свет, голубой — атмосферный свет, красный — акцентный свет, розовый — навигационный свет
нормы освещения. люкс
подбор светильников. люкс
слои освещения. семейный номер; желтый — функциональный свет, голубой — атмосферный свет, красный — акцентный свет, розовый — навигационный свет
нормы освещения. семейный номер
подбор светильников. семейный номер
Процесс разработки освещения для отеля является важным этапом в создании комфортного и эстетически привлекательного пространства для гостей. В ходе реализации данного проекта были учтены различные аспекты, начиная от функциональных требований и заканчивая дизайном и атмосферным освещением. Таким образом, мы получили современную, эффективную и эстетически привлекательную систему освещения.
При разработке системы освещения мы достигли: — комфорта и функциональности: освещение разработано таким образом, чтобы обеспечить максимальный комфорт для гостей в различных зонах отеля. В результате, каждая зона имеет свое уникальное освещение, соответствующее ее функциональному назначению — создания особой атмосферы и эстетики: дизайнерские решения в освещении способствуют созданию приятной и уютной атмосферы. Использование различных тематических светильников подчеркивает тематику отеля — соответствия нормам: учет назначения и специфики разрабатываемых пространств позволил подобрать светильники, которые способны в совокупности соответствовать нормам освещения




