ситуационный план; генеральный план
концепция пространства; коллаж
ВЕКТОР — центр для молодых креативных людей, объединяющий обучение, практику и общение в сфере фотографии. Место будет интересным не только людям знакомым с фотографией, но и новичкам в этой сфере
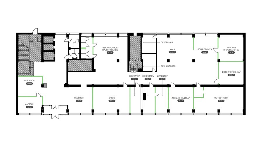
план перепланировки; план расстановки мебели и оборудования
Исходный размер 2846x1600
входная зона
выставочное пространство
офис
Исходный размер 2846x1600
лекционный зал
кафе
зона отдыха
Исходный размер 2846x1600
фотостудия
Исходный размер 2846x1600
Исходный размер 2846x1600
ресепшен



