

Адрес: г. Москва, Ул. Старая Басманная, 21/4 Расположен на цокольном этаже Площадь используемого помещения: 886 м² Транспортная доступность: • Метро: «Красные Ворота» (5-7 минут пешком) и «Курская» (7-10 минут пешком). • Наземный транспорт: автобусы, трамваи, также есть доступ к платформам пригородных электричек. • Время в пути: дорога из центра Москвы до места займет не более 20-25 минут.


Исторический контекст: — Район: Басманная слобода — исторический заповедник Москвы с наследием XVI–XIX вв. От ремесленных корней до аристократических усадеб. — Здание: корпус ВШЭ исторически входил в комплекс усадьбы Ивана Римского-Корсакова (XVIII век).

Мудборд
«МИКРОМИР» — это исследовательский центр, где стираются границы восприятия. Мы предлагаем путешествие вглубь материи: от красоты привычных форм макромира до невидимой глазу вселенной клеток и атомов.
Целевая аудитория: — Студенты и молодые ученые (18-25 лет) — Профессионалы (25-35 лет) — Школьники и семьи с детьми (10+)
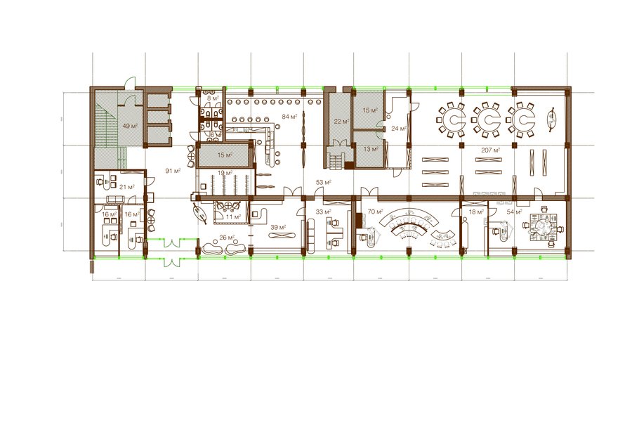
План расстановки мебели и оборудования Зонирование
Входная зона, шоурум


Кафе + фотозона
Лаборантская
Зона «лупы»
Зона «микроскопы»
Стойка ресепшн