
Молодёжное пространство представляет из себя открытые мастерские с краеведческим уклоном, где посетители могут погружаться в изучение истории Санкт-Петербурга.

В специальных зонах предусмотрены возможности для работы со стеклом, бумагой и очисткой металлических изделий. Здесь осуществляется мелкая работа по восстановлению предметов, обладающих исторической ценностью, что позволяет сохранять культурное наследие города. Пространство вдохновляет на творчество и взаимодействие с прошлым, создавая новые истории из старых вещей.
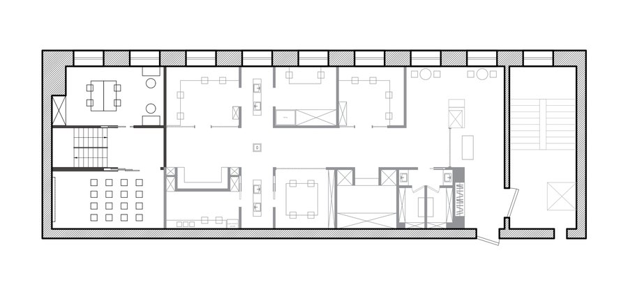
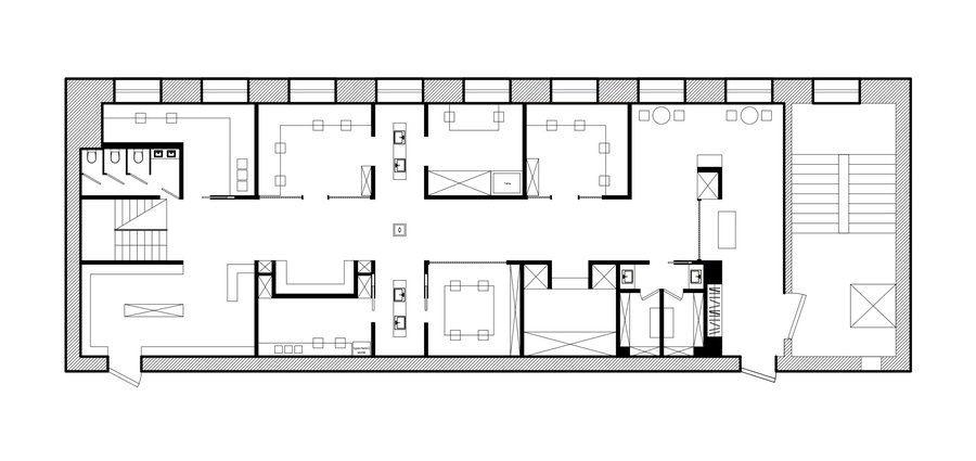
ПЛАН
План. 1 этаж
ВИЗУАЛИЗАЦИИ
Мокрые точки
Антресоль