



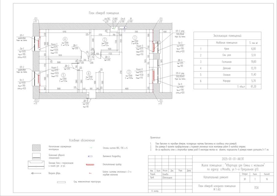
Высота квартиры небольшая, 2,5 метра от уровня лестничной клетки. На плане обмеров указана исходная конфигурация помещения и привязки основных инженерных сетей и оборудования.
Для правильного расчета жилого и общего пространства я разработала план функционального зонирования, в котором учла комфортное размещение всех членов семьи и вместительные системы хранения.
Далее для реализации всех потребностей заказчиков я предусмотрела незначительную перепланировку при разработке плана расстановки мебели и оборудования.
На первых этапах взаимодействия с заказчиком выли выполнены прикидочные коллажи будущих зон квартиры.
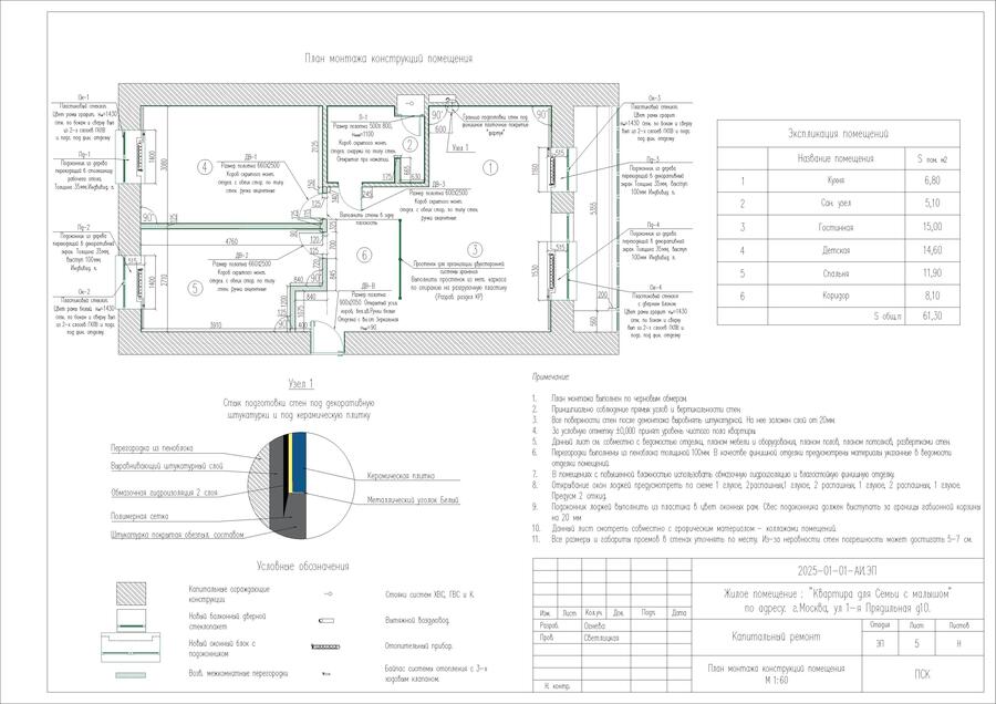
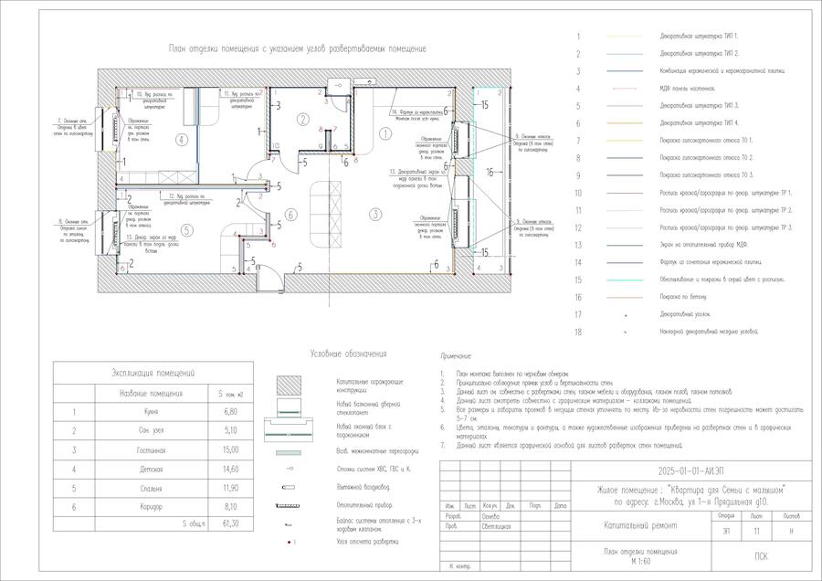
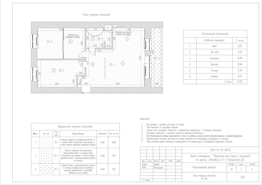
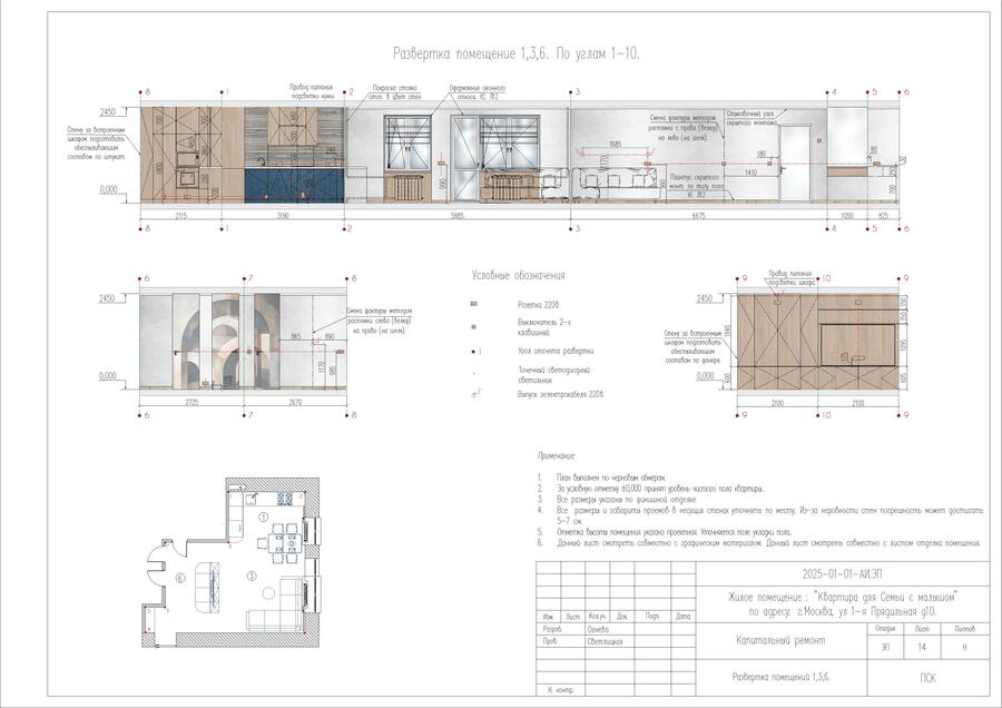
Техническая часть дизайн проекта квартиры. Тут мы можем пройти весь путь преображения помещения от демонтажа конструкций до финишной отделки поверхностей.
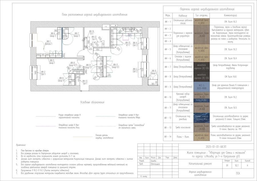
Далее мы можем рассмотреть изделия индивидуального изготовления, предусмотренные в проекте.