Концепция
Молодёжный центр в Никольских рядах — это пространство, где городская динамика встречается с природной тишиной. Здесь человек не просто находится — он движется, исследует, творит. В зелёных укрытиях можно уединиться и восстановить энергию; на открытых зонах — рисовать, создавать музыку или спонтанные перформансы.
Идея создать место вдохновения и самоопределения, где молодые люди ощущают связь с городом, природой и собой.



Зонирование
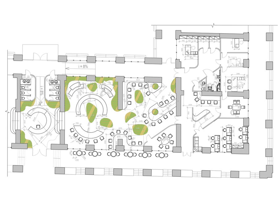
Центральная ось движения — открытый маршрут-тропа мимо «зеленых» островков».
Пространство поддерживает самовыражение, формирует чувство принадлежности городу и даёт свободу быть собой.
Зона офисов решена в спокойных тонах для большей концентрации.
Аксонометрия
План
Визуализации
Ресепшен
Шоурум
Кофепоинт
Коворкинг
Коворкинг
Переговорная
Офис
Офис
Кабинет директора
Кабинет заместителя директора
Галерея
Стойка ресепшена
